
It’s possible to say that I’ve had an intimate relationship with both Toronto and Vancouver. I was born in Canada’s largest city, and have lived here on and off (currently on) for my whole life. It’s my steady, and I love it the way I love an old, comfortable sweater. I’ve also traveled west a few times to visit. There’s something about all the mountains and trees that used to really spark my imagination. But my most recent trip to Vancouver — a three month stint in 2008, when I was on a university work term — cured me of any desire to live on near the pacific. It’s pretty, true. Yet aside from the great skiing and hiking, it can be kind of tedious. How many lattes can someone drink without wanting a bit more edge? I have to admit, however, I’m a little jealous right now of a couple of their architectural projects. Might make a trip necessary again in the future.

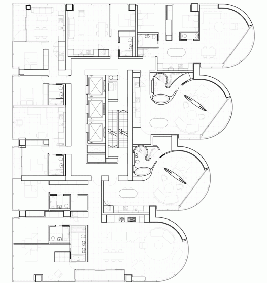
The first is a newly built mixed-use development — Norman Foster’s 35-storey financial district tower, which rises from the side of a two refurbished 1920s buildings. Called Jameson House, it has 23 floors of apartments above retail and office space. I particularly like the 4 tall, elegant tubes on the northeast elevation, which make for a strong, distinct elevation.

It’s interesting to say how those deep bays work in plan, making decent sized living areas and bedrooms.

It’s also interesting (and a bit sad) to compare Foster’s Vancouver project to his 2006 Toronto design for the Leslie Dan Faculty of Pharmacy. Yep, it’s a box. Zzzzz.

The other new Vancouver development that I like is still in the concept phase, but if the finished 49-storey skyscraper — from Denmark’s Bjarke Ingels and his firm, BIG — is anything like the above rendering, it will be sexier than James Franco with his top off (provided you find that idea sexy, and not repulsive…I personally vote sexy).

The tower’s podium proposes to extend under an adjacent highway underpass to create a lively urban square. Finding creative, successful ways to bring life and purpose to these leftover spaces isn’t easy, but if this works, could be an inspiration to other urban sites with similar conditions. The rendering reminds me of Toronto’s proposed Underpass Park, but, because the grass is always green, is a bit more slick.
Apparently, BIG is also working on a project for Toronto. I hope it’s as inspiring.
Sources:
Jameson House by Foster + Partners, Dezeen.
Beach and Howe St. by BIG, Dezeen.

Leave a comment